Iniciativa Chernobyl

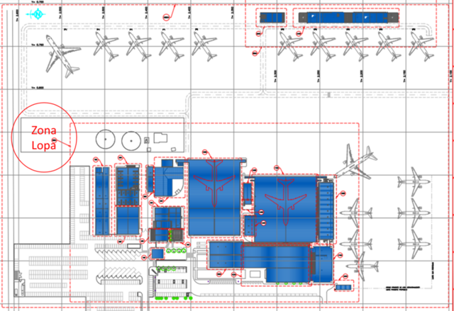
  • Situación Inicial Posición LOPA

    Situación Inicial Posición LOPA

    Zona talleres con desperdicios, scrap / Área desordenada no controlada.
  • Definición Movimiento Carpas

    Definición Movimiento Carpas

    Definición de movimiento de la carpa sur ( equipo Proyectos Lopa). Validar presupuesto.
  • Limpieza Zona Talleres

    Limpieza Zona Talleres

    Limpieza zona frente a los talleres (700m2) & Movimiento de estabilizador.
  • Delimitación de cada zona

    Delimitación de cada zona

    Se delimita e identifica cada área asociadas a posicionamiento del avión en zona LOPA.
  • Análisis de Gestión del Cambio

    Análisis de Gestión del Cambio

    Elaboración del AGC (matriz de análisis de actividad, peligros, barreras, riesgos y responsables) y elaboración de planimetría junto con el Área de Calidad-Mantto Mayor.
  • Delimitación zona recilaje

    Delimitación zona recilaje

    Definición de reciclaje, donación o eliminación de basura (Scrap)
  • Demarcación Zona Lopa

    Demarcación Zona Lopa

    Demarcación realizada de acuerdo a indicadores, barreras existentes para posicionamiento de avión B787-9 de acuerdo a planimetría.
  • Marcado posicionamiento WB

    Marcado posicionamiento WB

    Se demarcara línea guía para posicionamiento del avión con una correcta descripción del tipo de avión: A320 FAM, B767 & B787.
  • Señalización de altura

    Señalización de altura

    Se establece y coloca señales de altura máxima (4mts) en diferentes zonas, tanto para el acceso del avión hacia la posición como el área de trabajo.
  • Valorización beneficio proyecto

    Valorización beneficio proyecto

    Business case de beneficio proyecto:
    Costo de Cabin Retrofit LOPA SCL
    Costo de Cabin Retrofit LOPA EYE
    Costo de las aeronaves en SCL (parking & traslados)
  • En espera de validación AGC

    En espera de validación AGC

    En espera del área de Seguridad Operacional para validación del AGC. Ok por parte de calidad con las modificaciones y sugerencias dadas previamente en la matriz.

Plan projects on a visual timeline

Map milestones, phases, deadlines, and key events in one place so the sequence is easier to see and share. Timetoast is a timeline maker for work, school, research, and stories.