CITE MANIFESTE MULHOUSE

  • ARQUITECTOS
    10

    ARQUITECTOS

    LACATON Y VASSAL Una "Arquitectura Modesta" es una frase que llama la atención en en la composición de ligereza de sus obras.
    Basados en las estructuras simples del país africano de Nigeria llegaron a proyectarlo en sus estructuras o a lo que ellos llaman "mantener sencillo". IMAGEN
    Conca, I.(2020).Lacaton & Vassal, arquitectura generosa, sostenible y asequible.https://www.arquitecturaydiseno.es/arquitectura/entrevista-a-lacaton-y-vasal_2568/1
  • Period: 10 to 19

    HISTORIA

    Los arquitectos muestran una arquitctura con ligereza debido a sus materiales, representacion de la mayoria de sus obras.
    Sus proyectos como una arquitectura social relacionada y enfocada al confort y la economía.
  • CIUDAD
    20

    CIUDAD

    El proyecto de La Cite Manifeste de Mulhouse se ubica en Mulhouse, Francia.
    Mulhouse es una ciudad de alsacia en la region del Gran Este. Imagen: Open Street Map (s.f).Mapa la Cite Manifeste, Francia en maps. Recuperado de: https://www.openstreetmap.org/search?query=mulhouse#map=13/47.7526/7.3254&layers=O
  • Period: 20 to 29

    UBICACION

    El contexto, la cultura y la sociedad
  • Manzana
    30

    Manzana

    La tipologia de manzana que se puede encontrar en el contexto del proyecto es muy ortogonal, respetando el urbanismo a través de la historia del lugar.
    se puede ver el orden entre el espacio publico y privado, el espacio construido y el espacio para uso libre.
    Imagen:
    Open Street Map.(s.f).Mapa la Cite Manifeste, Francia en maps. Recuperado de: https://www.openstreetmap.org/search?query=mulhouse#map=13/47.7526/7.3254&layers=O
  • Period: 30 to 38

    CONTEXTO

    Un analisis sobre la percepcion del espacio, la imagen y la representacion a traves de la arquitectura.
  • LLeno Y Vacio
    32

    LLeno Y Vacio

    Se evidencia el contexto y la ocupación a nivel de espacio con respecto a las demás proyectos.
    El porcentaje aproximado de su ocupación es del 80%, hace uso patios, uno frontal y otro posterior, un acceso peatonal y otro vehicular. Imagen:
    HachHach.(2019).Des logements sociaux de type Mulhouse : une longue histoire. Recuperado de: http://hachhachhh.blogspot.com/2019/10/des-logements-sociaux-de-type-mulhouse.html?m=0
  • USOS
    34

    USOS

    La mayor parte de usos del suelo en el sector se basa en la vivienda, con algunos usos del suelo como comercio y espacios verdes.
    Imagen:
    Open Street Map (s.f).Mapa la Cite Manifeste, Francia en maps. Recuperado de: https://www.openstreetmap.org/search?query=mulhouse#map=13/47.7526/7.3254&layers=O
    Analisis
    Elaboracion Propia
  • VIAS
    36

    VIAS

    El proyecto se encuentra cerca a dos vias principales de la ciudad, asi mismo se encuentra cerca de los diferentes puntos de acceso al medio de transporte publico como lo son el tren y el bus.
    Asi mismo la mayoría corresponden vías terciarias y vehiculares.
    Imagen:
    Open Street Map (s.f).Mapa la Cite Manifeste, Francia en maps. Recuperado de: https://www.openstreetmap.org/search?query=mulhouse#map=13/47.7526/7.3254&layers=O
    Analisis:
    Elaboración Propia
  • Rios
    40

    Rios

    Colinda con el Rio III y Doller, nacioente del Rio III que atraviesa el territorio limitrofe entre Francia y Alemania ademas
    Imagen
    Corneli, H.(2015).Viaje en barco en el río III, La Petite France (Francia), poco lado derecho el restaurante Maison des Tanneurs, Estrasburgo, Alsacia, Francia, Europa. Recuperado de: https://www.alamy.es/foto-viaje-en-barco-en-el-rio-iii-la-petite-france-francia-poco-lado-derecho-el-restaurante-maison-des-tanneurs-estrasburgo-alsacia-francia-europa-175155207.html
  • Period: 40 to 48

    ESTRUCTURA ECOLOGICA

    Adaptacion de la ciudad en la naturaleza
  • Areas Verdes
    44

    Areas Verdes

    Espacios verdes con un uso publico y privado y reservas naturales, zonas limítrofes a la ciudad.
    Imagen:
    Open Street Map (s.f).Mapa la Cite Manifeste, Francia en maps. Recuperado de: https://www.openstreetmap.org/search?query=mulhouse#map=13/47.7526/7.3254&layers=O
  • TOPOGRAFIA
    48

    TOPOGRAFIA

    La topografía del lugar es en su mayoría es plana, las curvas de nivel varian entre 1 y 4 metros, pero el proyecto se encuentra sobre 241 M.
    Imagen:
    Open Street Map (s.f).Mapa la Cite Manifeste, Francia en maps. Recuperado de: https://www.openstreetmap.org/search?query=mulhouse#map=13/47.7526/7.3254&layers=O
    Analisis:
    Elaboracion Propia
  • SERVICIOS
    50

    SERVICIOS

    La ubicación de la cite manifesté con respecto al rango de distancia que existe entre las principales necesidades (Educación, Salud, Alimentación) se extiende entre los 70 metros y los 600 metros con la posibilidad de tener acceso al transporte publico, en bicicleta o a pie.
    Imagen:
    Open Street Map (s.f).Mapa la Cite Manifeste, Francia en maps. Recuperado de: https://www.openstreetmap.org/search?query=mulhouse#map=13/47.7526/7.3254&layers=O
    Analisis:
    Elaboracion Propia
  • Period: 50 to 59

    CAMINABILIDAD

    El recorrido a traves de los diferentes espacios
  • CIRCULACION
    55

    CIRCULACION

    La relación entre los proyectos reflejan una permeabilidad entre ellos, a pesar de ser de diferentes arquitectos, así mismo la accesibilidad a cada uno de estos permite controlar la entrada y salida de vehículos reptando en interés del peatón.
    Imagen:
    Open Street Map (s.f).Mapa la Cite Manifeste, Francia en maps. Recuperado de: https://www.openstreetmap.org/search?query=mulhouse#map=13/47.7526/7.3254&layers=O
    Analisis:
    Elaboración Propia
  • TIPOLOGIA
    60

    TIPOLOGIA

    La tipologia que se puede ver en el proyecto evidencia un bloque.
    Al analizar la forma se puede concluir que esta construida a partir de bloques. HachHach.(2019).Des logements sociaux de type Mulhouse : une longue histoire. Recuperado de: http://hachhachhh.blogspot.com/2019/10/des-logements-sociaux-de-type-mulhouse.html?m=0
  • Period: 60 to 69

    ANALISIS

    La Forma Y El Espacio
  • 61

    Tipo

    Una curiosidad de este proyecto es que a pesar de tener una forma ortogonal tanto en la malla organizadora como en el aspecto exterior, es que el orden de los muros varia en el interior, muros en dirección diagonal que se repiten generando un ritmo creando espacios de diferentes dimensiones.
  • MODULACION
    63

    MODULACION

    Se muestra una cuadricula que articula el sistema estructural y que ademas hace parte de la distribución de los espacios, algunas de estas divisiones están dadas entre ejes, evidenciando así la ligereza de las áreas de la vivienda.
    Imagen
    Lacaton & Vassal.(2005). Cité manifeste, Mulhouse
    Social housing, Mulhouse. Recuperado de: https://www.lacatonvassal.com/index.php?idp=19
    Analisis: Elaboracion Propia
  • ORDEN
    66

    ORDEN

    Los apartamentos siguen un orden entre la estructura, ayudándose de la dirección de los muros que es el separador entre ambos. imagen:
    Lacaton & Vassal.(2005). Cité manifeste, Mulhouse
    Social housing, Mulhouse. Recuperado de: https://www.lacatonvassal.com/index.php?idp=19
    Analsís:
    Elaboración Propia.
  • 67

    ORDEN

    Lo interesante es que en el interior del proyecto los espacios son fluidos a excepción de algunos como el baño, donde el usuario es quien se encarga de adecuarlos
    las dimensión rectangular y ortogonal que se muestra hacia el exterior del objeto es distinta en su interior, sin interferir en la imagen y la función.
  • REPETICION
    69

    REPETICION

    En la planta de primer nivel se puede ver la similitud de las dimensiones de los apartamentos, así mismo la disposición de los espacios con un solo uso, como los paseaderos y los patios frontales,.
    esta repetición se da en forma un poco simétrica y demarcada por el muro de carga en el centro del proyecto.
    imagen:
    Lacaton & Vassal.(2005). Cité manifeste, Mulhouse
    Social housing, Mulhouse. Recuperado de: https://www.lacatonvassal.com/index.php?idp=19
    Analsís:
    Elaboración Propia.
  • ARQUETIPOS
    70

    ARQUETIPOS

    Análisis de la relación entre el interior y el exterior, los materiales que se usaron y el sentido de especialidad que se pensó crearon una ligereza en el ambiente, el arquetipo que representan la construcción principalmente es el Porche.
    imagen:
    Lacaton & Vassal.(2005). Cité manifeste, Mulhouse
    Social housing, Mulhouse. Recuperado de: https://www.lacatonvassal.com/index.php?idp=19
    Analsís:
    Elaboración Propia.
  • Period: 70 to 80

    RELACION ESPACIAL

    De codificación de los espacio y su relación con el exterior
  • CATEGORIAS ESPACIALES
    75

    CATEGORIAS ESPACIALES

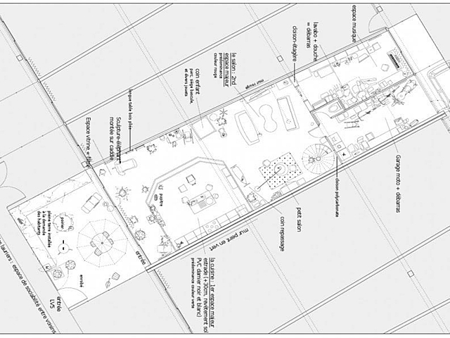
    los espacios se determinan a partir de la funciones que les da el usuario, la percepción que presenta es de un espacio fluido solo confinando el área privada, tanto en el segundo nivel como son los cuartos y los baños, garaje y patio.
    imagen:
    Lacaton & Vassal.(2005). Cité manifeste, Mulhouse
    Social housing, Mulhouse. Recuperado de: https://www.lacatonvassal.com/index.php?idp=19
    Analsís:
    Elaboración Propia.
  • ACCESO
    80

    ACCESO

    La Cite Manifesté cuneta con dos accesos, uno a cada lado de la construcción, en las dos caras de la fachada, la diferencia es el uso por donde ingresa, la parte delantera es un patio donde el acceso principal es de forma peatonal, mientras que el segundo acceso se va enfoca al uso de algún vehículo.
    imagen:
    Lacaton & Vassal.(2005). Cité manifeste, Mulhouse
    Social housing, Mulhouse. Recuperado de: https://www.lacatonvassal.com/index.php?idp=19
    Analsís:
    Elaboración Propia.
  • Period: 80 to 90

    ESPACIALIDAD

    Orden del Espacio
  • TIPOLOGIA DE APARTAMENTOS
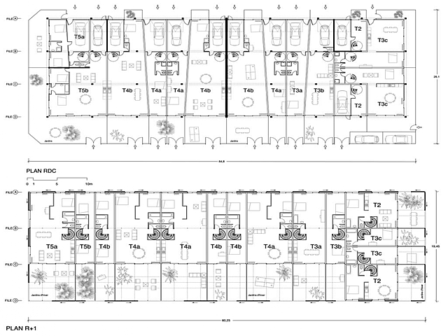
    82

    TIPOLOGIA DE APARTAMENTOS

    14 Apartamentos subdivididos en 4 tipo logias, diferenciando la forma, proporción y dimensión.
    imagen:
    Lacaton & Vassal.(2005). Cité manifeste, Mulhouse
    Social housing, Mulhouse. Recuperado de: https://www.lacatonvassal.com/index.php?idp=19
  • TIPOLOGIA A
    84

    TIPOLOGIA A

    imagen:
    Lacaton & Vassal.(2005). Cité manifeste, Mulhouse
    Social housing, Mulhouse. Recuperado de: https://www.lacatonvassal.com/index.php?idp=19
  • TIPOLOGIA B
    86

    TIPOLOGIA B

    imagen:
    Lacaton & Vassal.(2005). Cité manifeste, Mulhouse
    Social housing, Mulhouse. Recuperado de: https://www.lacatonvassal.com/index.php?idp=19
  • TIPOOGIA C
    88

    TIPOOGIA C

    imagen:
    Lacaton & Vassal.(2005). Cité manifeste, Mulhouse
    Social housing, Mulhouse. Recuperado de: https://www.lacatonvassal.com/index.php?idp=19
  • TIPOLOGIA D
    90

    TIPOLOGIA D

    imagen:
    Lacaton & Vassal.(2005). Cité manifeste, Mulhouse
    Social housing, Mulhouse. Recuperado de: https://www.lacatonvassal.com/index.php?idp=19
  • SISTEMA ESTRUCTURAL
    90

    SISTEMA ESTRUCTURAL

    Es un sistema dual, con pórticos y muros de carga, dividido en dos partes(una materialidad distinta por cada nivel), en el primer nivel se encuentran columnas de hormigón armado y en el segundo una estructura de acero galvanizado.
    imagen:
    Lacaton & Vassal.(2005). Cité manifeste, Mulhouse
    Social housing, Mulhouse. Recuperado de: https://www.lacatonvassal.com/index.php?idp=19
  • Period: 90 to 100

    ESTRUCTURA

    cOMPOSICION CONSRUCTIVA
  • DIAGRAMA DE CARGAS
    92

    DIAGRAMA DE CARGAS

    Las cargas ejercidas a través de la estructura descansan en los pórticos, que a su vez estos los diseccionan a las zapatas creando una tensión en el suelo.
    Imagen:
    Elaboracion Propia
  • MATERIALIDAD
    96

    MATERIALIDAD

    Los principales materiales que se usaron fueron el hormigón armado, acero galvanizado y policarbonato
    imagen:
    Lacaton & Vassal.(2005). Cité manifeste, Mulhouse
    Social housing, Mulhouse. Recuperado de: https://www.lacatonvassal.com/index.php?idp=19