230. arq. uru. sxxi

Arquitectura en Uruguay Siglo XXi

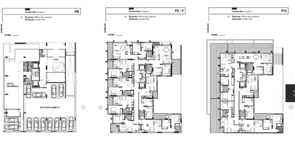
  • Sede BID (ex Hotel Colón) Gómez Platero
    1 CE

    Sede BID (ex Hotel Colón) Gómez Platero

    Este edificio estaba en abandona.
    Queda con el patio como gran articulador sobre las crujías.
    Se cubren las cara bollas de la intemperie, buscando tecnificar sobre la conservación del Patrimonio.
  • Arq Hospitalaria.
    200

    Arq Hospitalaria.

    También ahí una explosión de área, debido a la inversión publica y a motivos de su mismo programa en continuo cambio.
    El hospital Británico en una de sus fases, luego el sanitario del BSE,
    Estudios acotado, porque la Arq. hospitalaria requieren un un nivel de especificación que no cualquier estudio puede asumir. Lo que ahí siempre es un crecimiento continuo. No solo porque crecen si no cambian las tecnologías sin interrumpir la actividad del mismo. y una hostilización del Hosp.
  • Liceo N°3 Mina Beatriz Tanca
    Feb 2, 1015

    Liceo N°3 Mina Beatriz Tanca

    En secundaria se agranda la escala, un poco recordando los liceos de mitad de siglo XX,
    Un carácter de Arq. moderna, volúmenes puras ventanales grandes,
    Una implantación abstracta.
    Ocupa una manzana y una gran complejidad programática.
  • Introduccion

    Introduccion

    En la imagen ilustra con sus nombre en ella que, Nuevos programas y innovaciones, de todas formas en los últimos 20 años desde el 2000.
  • Vivienda en Propiedad Horizontal (PH) Introduccion

    Vivienda en Propiedad Horizontal (PH) Introduccion

    Ahí cambios en el tipo morfológico, y de implantación, una reducción de los espacios evitables.
    La ley Promoción social, en lugares estratégicos.
    Ley de Acordonamientos, muros medianeros que ahora son fachadas
  • Una Morfología Emergente, edificios en altura de Acordonamiento

    Una Morfología Emergente, edificios en altura de Acordonamiento

    Donde se observan, donde eran fachadas ciegas, ahora son fachadas mas interesantes con ventanas, pero no ahí consideración, sobre los predios linderos, que aparte de reducir su precio debido a no poder construir en altura, ven invadida su propia privacidad
  • Estrategias

    Estrategias

    Se da una matriz de ordenes a través de programas y luego claves temáticas. Programas:
    La vivienda uní familiar
    los hospitales
    la vivienda colectiva
    escolar
    el turismos Claves Temáticas
    Patrimonio,
    sustentable
    el rol de ejercer ser Arq. en un marco.
    Las tecnologías Fuente diversas. No ahí libros. revistas Arq.
  • Unidad de datos del Observador

    Unidad de datos del Observador

    Actualiza de precios de inmuebles, donde ahí mas auge inmovilizara.
  • Aplicacion Nomodad

    Aplicacion Nomodad

    Obras con Planos
  • Introducción

    Introducción

    Se ve en la imagen, nuevas construcciones representativa del XXI, y ilustra la variedad de nuevos programas, y la inovacion dentro de lo existente. Pasan pasan muchas cosas en esto 20 años en cambio importantes.
  • Las casas masivas en la Costa

    Las casas masivas en la Costa

    Ahí empresa construyendo casa en menos de 3 meses, gracias a disminuir el tiempo y el coste, que no implican de forma directa a los arquitectos.
    No se logra mejorar el método tecnológico para poder bajar el costo.
    En los contenderos ahí son del exitim Minumun.
    Vuelve el modulo, esa promesa de la Arq. moderna , que se resolvió por parte ingenieril.
    La de autor no es tan masiva, pero si tiene incidencia en los tramos de la ciudad
  • Estudios que Llevan estos Hospitales.

    Estudios que Llevan estos Hospitales.

    Se a disparado la planta hospitalaria como indica la imagen y también un repertorio de técnicos acotados.
  • Espacio Domestico Y el mobiliario Local

    Espacio Domestico Y el mobiliario Local

    Tenemos el caso de Menini Nicola, se mara en relaciona con mobiliar de autor, se da a varias obras del mobiliario de autor.
  • Instituto nacional de vivienda

    Instituto nacional de vivienda

    Instituyo un Mínimo de vivienda en 68 un nivel máximo del 15% del costo de la tierra de la Coops, dando así como resultado sacar las coops a la periferias.
    Aunque esto contrasta con el costo de hacer llegar los servicios a esta arias periféricas con el gran costo elevado de una coops en una zona mas consolidada
  • Pabellón del Salto del Penitente

    Pabellón del Salto del Penitente

    Una sobria casa posada sobre una ladera.
    Se articula entre le campin y el mirador.
    La geometría es pura y no como el lugar donde se posa pero si para contemplar
  • Casa en Calle Libertad/ Pedro Livni+Karin Bia

    Casa en Calle Libertad/ Pedro Livni+Karin Bia

    De tabiques móviles en su interior, jugando así con la espacialidad interna y haciendo un espacio dinámico y cambiante. Insertada en una parte consolidada de Montevideo.
    Con jardín elevado, un juego en una delicadeza, asta en la escalera, volcándose mas hacia el fondo.
  • Univercidad

    Univercidad

    La universidad de la republica se multiplico por dos en 10 años.
    Descentralizando, las carreras.
    Generando una posibilidad de estancan la migración a Montevideo, e estimulara la de Montevideo a unos puntos del interior
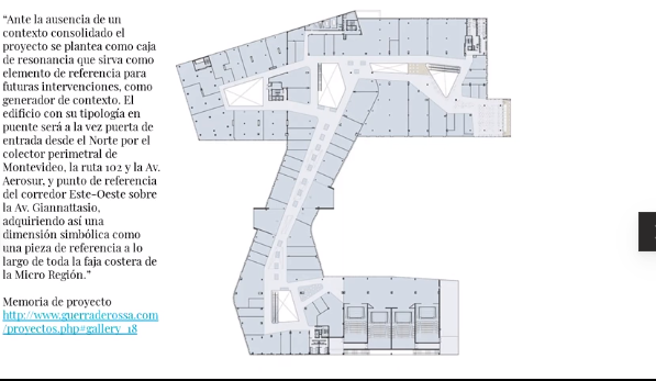
  • Terminal Marítima Pasajeros de Colonia

    Terminal Marítima Pasajeros de Colonia

    Contactor entre Bs As,
    Es muy claro en su materialidad, pero propone muchos metros de aria para resolver el problema de los turisstas.
  • Centro de formacion para la Coorporacion Española en Montevideo (ex casa Agustina de Castreo, Arq Capurro)

    Centro de formacion para la Coorporacion Española en Montevideo (ex casa Agustina de Castreo, Arq Capurro)

    Se recupera la azotea, se busca la atracción material en espacios de transición, y la restauración tradicional.
    En la caballeriza hace una arquitectura liviana blanca y trasparente
    Se respeta la estructura formal, estos proyectos tienen una implicancia importante con las diferentes oficinas dedicadas al patrimonio a distintas alturas.
  • Areopuerto de Carasco

    Areopuerto de Carasco

    Una geografía Artificial, en la generación de largas pistas, es decir que se agrandan las pistas.
    Se le critica que al tener una forma acabada de un solo gesto, no permite la ampliación civil del aeropuerto
  • Arq Educativa Intreduccion

    Arq Educativa Intreduccion

    Incremento de la educación se aumento en estos últimos 15 años.
    La experiencia que las arquitectura abran resultado.
    Una enorme extensión de escuelas, donde los "indicadores", ya no eran asumidas por la familias.
    Un claro ejemplo de papa estado
    Este edificio se separan en dos volúmenes dentro de los cuerpo Arq.
  • Universidades Urbanas vs Campus Universitario

    Universidades Urbanas vs Campus Universitario

    El Modelo de universidad urbana es la política de la UDELAR.
  • Edificio El Plata Montero, Berio Arquitectos. Montevideo

    Edificio El Plata Montero, Berio Arquitectos. Montevideo

    También sobriedad material, con fachadas de acordamientos.
    Pero que juegan a una fuerte pequeñez tipológica, porque es lo que el mercado permite.
    Porque el Arq. ya no pone la dimensiones si no que el mercado lo hace.
    Utiliza el retranqueo para acordonar, buscando aumentar el tamaño de los espacios.
    Pero en sus tipologías de medio ambiente, angosta la geometría, para que las dos fachadas tengan ventilación. Poniendo un núcleo Húmedo baño coc., comedor, cama y estar
  • La Tahona

    La Tahona

    En este barrio se crea todo lo que ciudad necesita, acentuando el auto aislamiento de estos Barrios Pribados
  • Vivienda de Interés Social-Ley 18795

    Vivienda de Interés Social-Ley 18795

    Promueve la inversión privada mediante exoneración de impuestos para esto.
    Se definen arias, porcentajes de dormitorios, y lugares específicos de la ciudad. Localizar donde hallan servicios, y han definidos reducciones tributarias para vivienda social.
    La verdad que a pesar de densificar zonas como el centro , el costo no decenio si no aumento, así que se cambia el nombre a vivienda promovida.
  • Mapa de Ley de interés vivienda Social 18795

    Mapa de Ley de interés vivienda Social 18795

    En la zona azul: Se promueve la obra nueva y el reciclaje sin tope de precios, y con exoneración tributaria del 100%. para el alquiler, con un sistema de combino de asociación de viviendas.
    En la zona violeta se da lo mismo
    Se confecciona un mapa donde se dice donde si y no, ahí un estimulo muy fuerte como el centro ciudad vieja y cordón. .
  • Nuevos Modelos de PH

    Nuevos Modelos de PH

    Donde 64 barrios privados en todo el paisa, y en Montevideo con ciertas irregularidades
    El fenómeno de los Barrios privados, donde Maldonado y el turismo neo rural, ha cambiado esto. Donde siempre se encuentra sobre la costa este y colonia.
    Empiezan a tener mas territorio que los asentamientos irregularidades.
    Donde un ahí un gueto involuntario y uno voluntario donde un grupo se aísla en una cuestión idílica del barrio jardín.
  • Costa Urbana Shopping

    Costa Urbana Shopping

    Tiene un centro cívico, lo que genera es un abierto programático y ofrece a un sector una cantidad de una facilidades, que es cada vez mas de una ciudad consolidada..
    Se compone de dos cuerpos conectados por un puente conector.
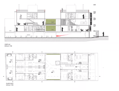
  • Edificio Live! LGD Montevideo  Ururguay

    Edificio Live! LGD Montevideo Ururguay

    Son muy recurrentes en esta zona de la ciudad.
    En el corte longitudinal podemos ver como desde la calle hacia el a la puerta de acceso, se genera un hall de recibientes.
    Luego se divide en dos cuerpos uno hacia el frente y otro hacia el fondo, con circulaciones exterior interior.
    Permite que los dos cuerpos del edifico tengo por lo tanto, ventilación cruzada y buena iluminación.
    El edificio esta alineado con las casas estándar linderas
  • Plaza Liber Seregnie y la Plaza casa Batlle

    Es un nuevo flujo de plaza, que ya no es solo de contemplación, si no que son verdaderos centros cívicos
  • Shoping de XXX

    Shoping de XXX

    Ahí un conjunto de estudios, con plantillas de trabajadores que permite tomar esta los trabajo de alta complejidad.
    Nuevos materiales como el Alucón, no es una gran gama de materiales pero si son propios de una época para este tipo de espacios
  • ANTEL Arena

    ANTEL Arena

    Fue una cosa muy discutida pero es realidad, excediendo su respuesta en mucho dinero.
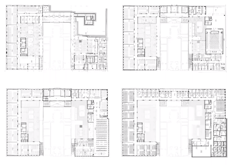
  • Shoping Nuevo Cenntro. Gomez Platero Arq.

    Shoping Nuevo Cenntro. Gomez Platero Arq.

    Demostró una demanda latente en esta trama de la ciudad, luego aparece como convive esto con los pequeños comerciantes.
    Aprese el alquiler con opción a compra con la construcción de dos torres de vivienda.
    Esta en la ex polo logístico de CUTSA, genera un parquin compleja pero que no alcanzan, es una dificultad de los estacionamientos, xq se invierte demasiado en ese problema.
  • UTEC Fray Bentos, Ruiz Dibarbure, Graiter

    UTEC Fray Bentos, Ruiz Dibarbure, Graiter

    La primera de UTEC, da un paso a un nuevo espacio en ele Uruguay.
    Ocupa barios edificios patrimoniales,
    Se busca recubrir el con chapa micro perforado, de un edificio patrimonial.
  • Altos del Libertadores Giordano-Lorente Arquitecto (Ley18795 IS)

    Altos del Libertadores Giordano-Lorente Arquitecto (Ley18795 IS)

    Es una obra que destaca por arias, es un ex fabrica de alpargatas.
    Se colocado amenitas en su patios de la ex fabrico.
    La pre existencia fabril, permitió mayor arias y con espacios que tienden un poco mas tendiendo al cuadrado
  • La  Casa del Uruguay

    La Casa del Uruguay

    Casa desarrollada Por la Universidad ORT, se ubico frente a XXX, es una exploración tipológica singular, lo interesante leras los paneles y vidrios con cámara de aire. Se invierte fuerte inicialmente y luego y después se ahorrar en energía.
    Esto no genero una real aceptación, debido a sus costo y que es tecnología alemana la cual esta lejos de de el ancase económico de nuestro medio.
  • Cooperativas Dispersas

    Cooperativas Dispersas

    La Coops, dispersa, es un nuevo imaginario cooperativa, se ponía foco en re constituir una nueva gestión, de collar esta vivienda no en un solo padrón en viviendas si no repartirlos por barios padrones mas o menos contiguo, cambiar los postramos, de aceptar que una misma comunidad puede separarse en varios espacios, ya un acuerdos en actores políticos sociales y academia que ahí que re pensar estos principios de la Coops.
  • Edificio Riachuelo, Estudio Zip, Luis Zino Guillermo Probst. Montevideo

    Edificio Riachuelo, Estudio Zip, Luis Zino Guillermo Probst. Montevideo

    No juega a una solo a lo sobrio, si juega con una materialidad muy sobria.
    También ahí descensos de Niveles, para sacar tres niveles de apartamentos.
    Se es mas generoso, xq es de un nivel económico mas alto.
    Se aprecia por lo tanto una reducción de los metros cuadrados por ambiente en el Uruguay
  • Plusvalia del Espacio

    Plusvalia del Espacio

    Entender la vivienda como algo flexible yy poder construir mas con la misma plata.
    La vivienda tiene que cambiar frente a la desnuclearización de la familia.
    Y que entonces sean todas flexibles.
  • Casa de Ladrillo/ Paulo Ambrosoni

    Casa de Ladrillo/ Paulo Ambrosoni

    Juega a una factura muy delicada, a un material de ladrillo tan tradicional.
    Pensada para soportar los calores de Salto.
    Se juega a la ventilación cruzada.
    Se vuelca al fondo y no al frente, respecto a la ciudad introvertida.
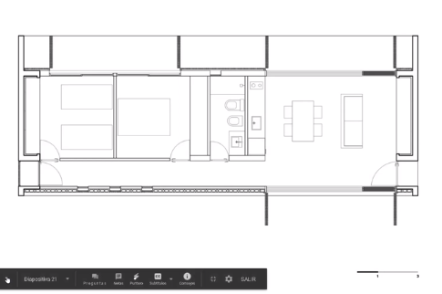
  • Planta Casa de Malvin, Casa Balnearia

    Planta Casa de Malvin, Casa Balnearia

    Un núcleo húmedo al centro, y aprendido en la facultad.
    La casas Balnearias, una actividad muy prolífica y diversa,
    Desde contenedores náuticos y otras mas tradicionales, y es muy interesante.
    Busca volúmenes abstractos, y preguntarse si no termina siendo algo permanente
  • Alma Sur, Arq Carlos Ott

    Alma Sur, Arq Carlos Ott

    Donde cuesta un apartamento de un millón de dólares.
    Es un estándar donde es algo mas armónico.
    Estos promotores buscan los lotes en esquina, para poder facilitar la calidad espacial de los apartamentos.
    Los beneficios. Excepción Tributarias:
    -IVA (22%)
    - IRPF (10 Años)
    -Impuesto a arrendamiento 10 años
    -ITP (Patrimonio) Vende y promociona estos beneficios
  • Cooperativismo Introduccion

    Cooperativismo Introduccion

    Con Tabaré, se aprobado muchas cantidades de estas.
    Pero donde se encuentran? Pero aun ahí una dificultad de instalarlas en el centro y no así en el área metropolitanas.
    Como hacer para construir en altura, para unos planes de mano de obra no calificados.
  • Escuela Jauregui Berry

    Escuela Jauregui Berry

    Escuela vista con recelo desde la academia, pero con mucha personaje internacional, por el personaje Norte americano.
    En la frontera de la costa ente Maldonado y Canelones.
    Un proyecto para enseñar sobre vio construcción. (Pabellón Funcional).
    Se degrado por falso de mantenimiento.
    Es un edificio de mas de 60% hecha con material reciclado
    Con alta inercia termina. para conservar los materiales.
    Paneles solares y autónoma con paneles y reutilizando el agua y produce alimentos.
  • Casas uni Familiares Casa en Marindia, Estudio MASA, Marindia

    Casas uni Familiares Casa en Marindia, Estudio MASA, Marindia

    Genera tendencias en los nuevos espacios los que desean espacios que desean vivir la gente con dinero, para pagar un Arq.
    Un volumen puro, en el verde, con un sistema móvil de fachada, mescal hormigón visto y madera.
    Es una caja mejica que trasmuta su forma, a Trávez de selacias de madera.
    Esto esta en la ciudad de la costa, se trata de una conurbación de Montevideo, que toma la costa de canelones dese los 90,cambiando el ambiente de este lugar ambiente en este lugar.
  • BSE-Fabrica de Paisajes

    BSE-Fabrica de Paisajes

    Su conceptos era jardines para la salud, es un hosp. paras quienes se recuperan de accidentes laborales.
    Busca amenizar la estadía en este hospital por los jardines.
    La complejidad tipológica es muy compleja, espacios asépticos, esclusas. Circulaciones para todo publico y para el personal.
  • Ofecinas Grupos Santander, Parqu Batlle

    Ofecinas Grupos Santander, Parqu Batlle

    Un materialización policromados, y sencillez volumétrica en estos espacios corporativo
  • Anexo Torre Ejecutiva.

    Anexo Torre Ejecutiva.

    Habla nuevos juegos materiales y formas compactas.
    Juega en planta baja con auditorio y luego oficinas
  • Edificio Estrella del Sur. Christoff De Sierra Arq. F. Comerci. Montevideo

    Edificio Estrella del Sur. Christoff De Sierra Arq. F. Comerci. Montevideo

    Juega con las calves de planificación de barrio sur, al norte del cementerio central.
    Juega con una morfología que se adecua la circunstancias de al rededor.
    La viviendas promovidas, de barrio sur y Palermo, donde muchos barrios fueron transformados de gran manera, por ser unos lugares consolidadas.
    Donde si a cambiado la cara de estos barrios, pero no para una clase trabajadora, que aun tiene pocas posibilidades de ahorro, derivado de una débil economía del pías.
  • Nuevo espacios de trabajo Sinergia

    Nuevo espacios de trabajo Sinergia

    Aprovecha el gran desnivel entre ambas planas y le da un dinamismo con una rampa, se proyecta un coliving no construido, aulas y una escuela de diseño, una suerte de patios y comidas. En estos espacios se viene afincando, pero sube los precios por recalificación del aria
  • Oficnia Rh}ndhes

    En la planta se trata de unificación de conjunto de apartamentos en espacio en U, es una suerte de mobiliario movido. Se busca una oficina paisaje y no reconoce la jerarquías de forma espacial
  • Bodega Viña Eden. Fabrica

    Bodega Viña Eden. Fabrica

    Se ubica cerca de los viñedos y tiene una intención de productiva y turística.
    General el valor a través de colocar un oxidante topográfico.
    Tiene una unidad programática en tres banda.
    Sobriedad Material.
  • Los imuebles abandonados

    Ahí 15 manzanas de casas abandonadas en el centros, son 2350 viviendas, donde ahí un problema con el acceso a la vivienda.
    Estos Arq. quieren realizar reciclajes, pero tienen que tener respaldo de dineros de parte del Estado. Logran el el 2018 promulgar una ley donde los dueños no puede especular con estos
  • Arquitecturas Residenciales de Marca Edificio Alma Brava, Arq. Matthias Klotz

    Arquitecturas Residenciales de Marca Edificio Alma Brava, Arq. Matthias Klotz

    Esta en Barrio sur, un edifico con una variedad tipológica, un edificio donde intenta poner balconeo para todos su espacios.
    Donde no se busca tener una tipología tan longas
  • Facultad de la Información y la Comunicación. (FIC) Arq  Torrado Llorente

    Facultad de la Información y la Comunicación. (FIC) Arq Torrado Llorente

    Se reforma la Pre existencia y se busca preservar no el aspecto formal si no el tipológico, en cierta forma respetando los patios.
    Excepto la iglesias que es un padrón aparte.
    El concepto de aulario, de descomprimir otras universidades.
    El logo de la FIC, es tomado del aulario.

Want to make a timeline like this?

Use Timetoast to turn dates, events, milestones, and phases into a clear visual timeline you can build and share. Timetoast is a timeline maker for work, school, research, and stories.